Facile, rapide et gratuit

Créez votre site maintenant

Je crée mon site
Site gratuit créé sur

Portfolio

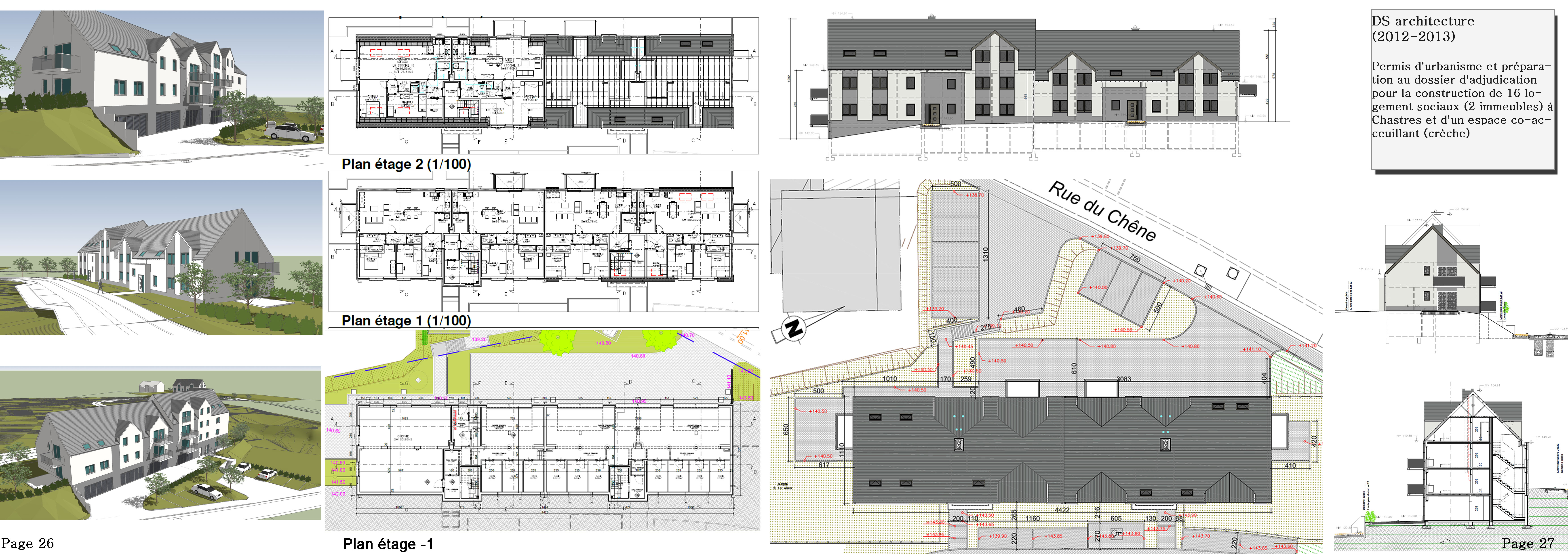
Il s'agit ici d'un aperçu des projets réalisés lors des études,

des projets auxquels j'ai participés durant ces cinq années aux seins de différents bureaux et de réalisations personnelles.

 

Mon portfolio est téléchargeable via le dossier ci-après

Fichier Pdf Extraits Portfolio
5,9 Mo
Fichier_Pdf_Extraits_Portfolio.rar